Chatswood House
Under Construction
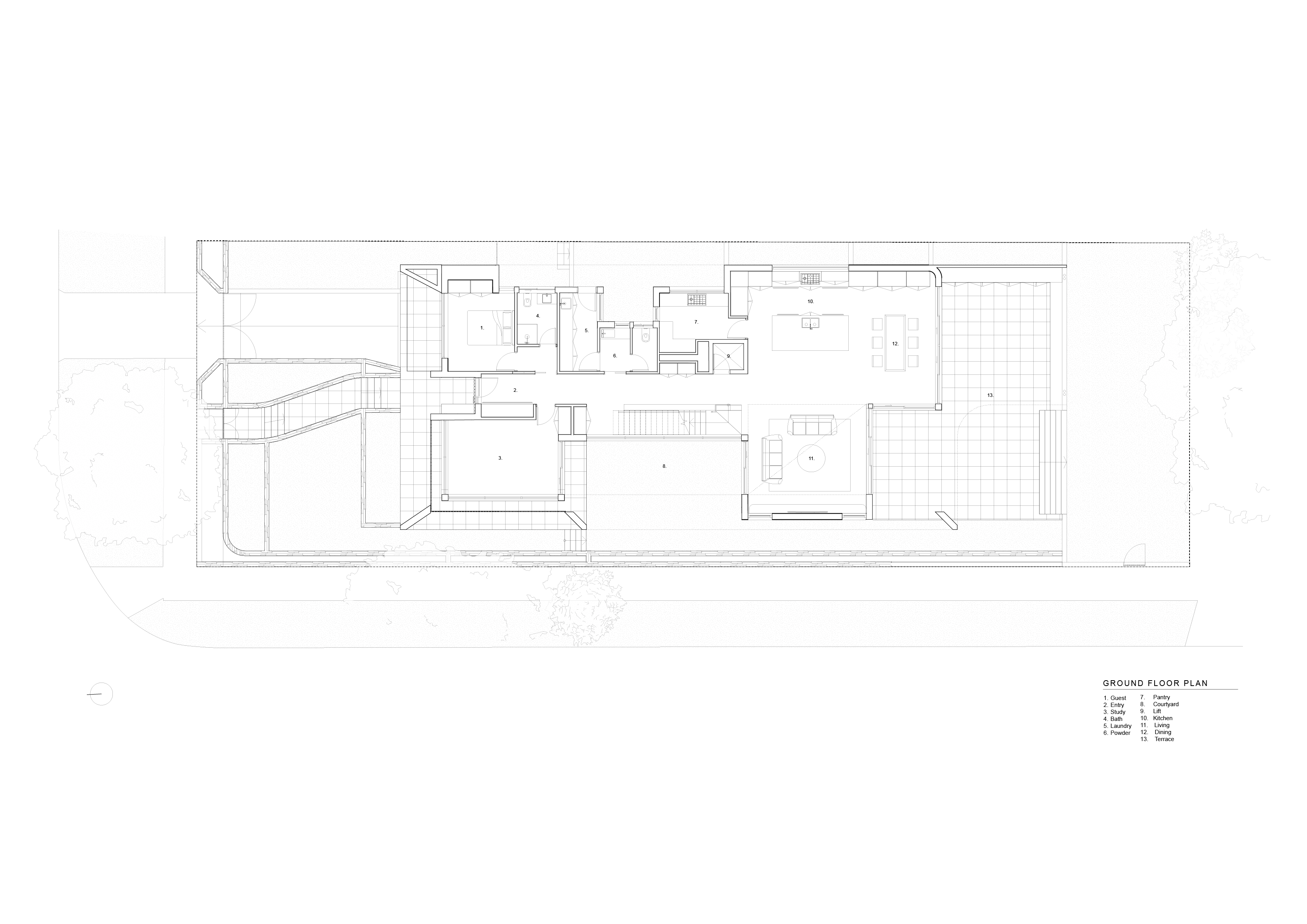
Embracing the prominent and established corner site, Chatswood House is a homage to its connection to and expression of the contemporary raw materiality, showcasing bricks concrete and steel - personifying the mass of a boulder, delicately floating within a shallow sea of lush shrubbery and landscaping. The weighted walls are softened by warm timbers and curves, all perceived through a biophilic line-of-sight.






